Toàn cảnh dự án là các khối kiến trúc hình hộp chữ nhật bán trong suốt, được xây dựng trên đỉnh một vách đá hướng ra đại dương bao la. Ngôn ngữ kiến trúc nhẹ nhàng, liền mạch với sự tổng hòa giữa không gian nội – ngoại thất, các vật liệu sử dụng chủ yếu là gỗ, đất, đá, kính…

Tổng thể công trình là chuỗi cấu trúc sinh vật – mặt nước-đại dương-chân trời – Ảnh © alila hotels

Vật liệu địa phương và vật liệu tái chế được khai thác tối đa – Ảnh © alila hotels
Cấu trúc công trình tuân thủ các giải pháp sinh thái nghiêm ngặt ngay trong suốt quá trình xây dựng, vật liệu tái chế, vật liệu địa phương được khai thác một cách tối đa, đặc biệt là hệ thống xử lý nước tại chỗ, bao gồm hệ thống thu hoạch nước mưa tự nhiên, lưu trữ và sử dụng cho hồ bơi, tưới cây…ngoài ra còn có hệ thống lọc nước thải tại chỗ. Và kết quả đạt được của WOHA không chỉ là không gian kiến trúc và môi trường hài hòa, mà còn đạt tình “thẩm mỹ” đối với môi trường và xã hội.
Khách sạn tọa lạc trên đỉnh một vách núi đá nhìn thẳng ra đại dương bao la – Ảnh © alila hotels
Bao bọc phía sau và 2 bên bởi những cánh rừng – Ảnh © alila hotels
Ảnh © alila hotels
Ở mọi vị trí, tầm nhìn là không hạn chế – Ảnh © alila hotels
Mỗi góc công trình là một sự tinh tế của giải pháp “không gian trong không gian” – Ảnh © alila hotels
Ảnh © alila hotels
Ảnh © alila hotels
Ảnh © alila hotels
Ảnh © alila hotels
Thổ mộc nhưng không kém phần hiện đại – Ảnh © alila hotels
Ảnh © alila hotels
Patern là những miếng gỗ trông “vụn” được sắp đặt có chủ ý – Ảnh © alila hotels
Ảnh © alila hotels
Ảnh © alila hotels
Ảnh © alila hotels
Bên thềm hoàng hôn – Ảnh © alila hotels
Ảnh © alila hotels
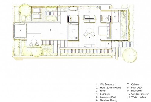
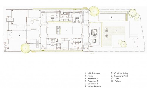
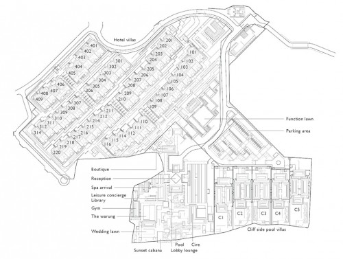
Mặt bằng tổng thể – Ảnh © alila hotels
Ảnh © alila hotels


